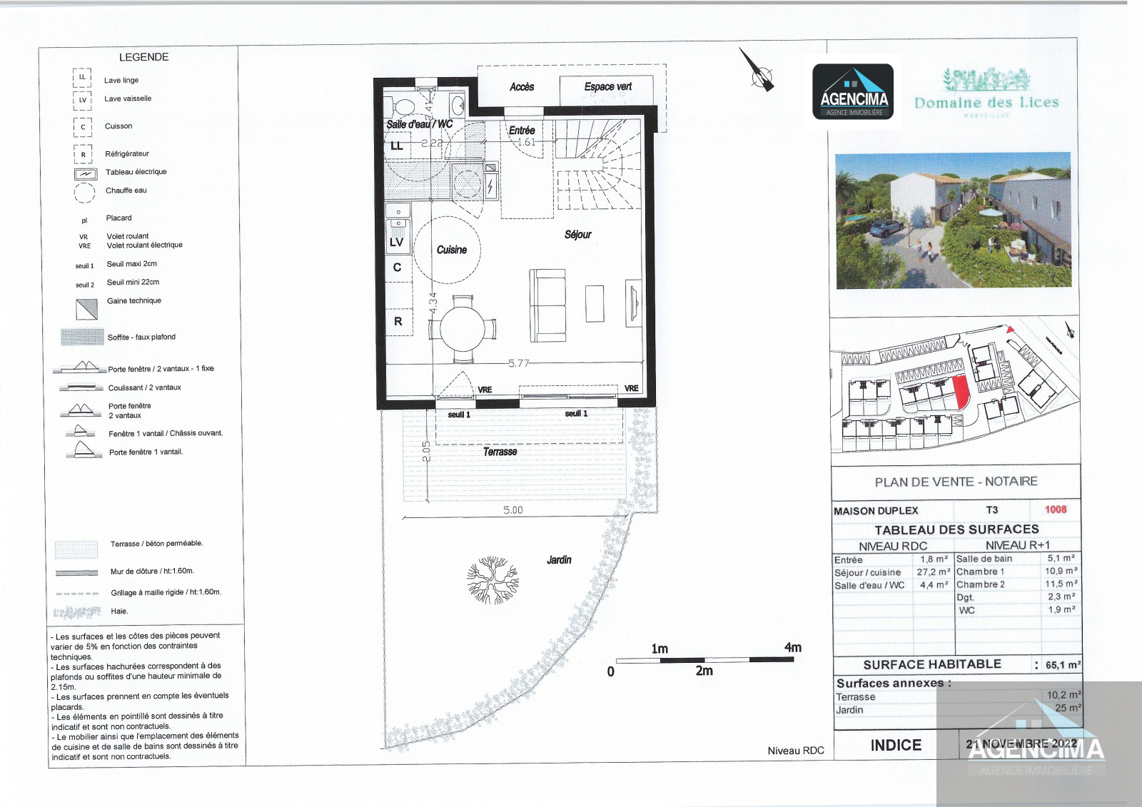
A vendre! Villa idéalement située dans un nouveau quartier résidentiel et sécurisé à quelques minutes du port et des commerces du centre-ville mais aussi à proximité des écoles et pistes cycables. Au rez-de-chaussée, se trouve une cuisine ouverte sur un beau et lumineux séjour orienté sud, une salle d'eau avec wc. A l'étage, vous y trouverez 2 chambres avec placards, une salle de bain et un wc séparé. Côté extérieur, une terrasse et un jardin seront propices à la détente que ce soit en famille ou entre amis. Deux places de parking complètent ce lot. Bien soumis au statut juridique de la copropriété. Nombre de lots: 28. Eligible aux dispositifs à la loi Pinel. Livrable au dernier trimestre 2024. Plus que quelques biens à la vente, alors n'hésitez pas, contactez notre agence pour plus d'informations. *Honoraires à la charge du vendeur.
